Prima pagina
Vanzari
Inchirieri
Cerere oferta
Oferta dvs.
Roandy imobiliare - Agentie imobiliara Ploiesti Roandy Imobiliare - Agentie Imobiliara Ploiesti
ID: 1922 - Casa de vanzare  
 
RoAndy RoAndy RoAndy RoAndy RoAndy RoAndy RoAndy RoAndy RoAndy RoAndy
   
Pret: 198000  euro
Localitate: Buda
Zona: 0
Nr.camere: 5
Regim inaltime: parter + 1
Nr.bai: 2
Balcoane: 2
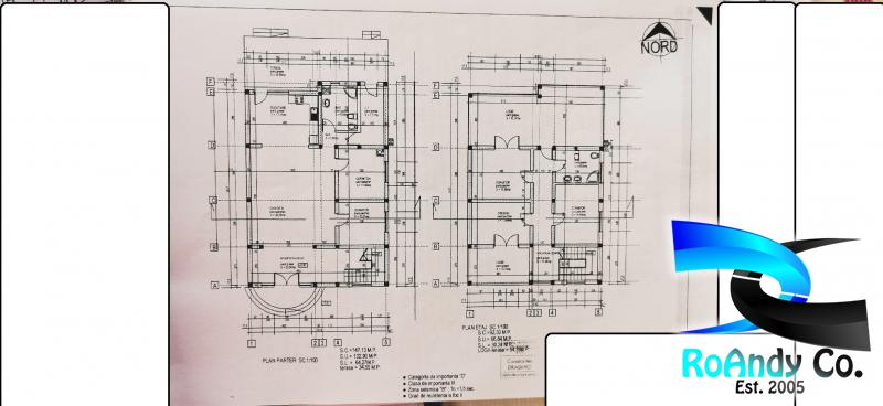
S.utila/constr.: utila totala 372 mp / constr.396 mp
Compartimentare Decomandate
Descriere

Va propunem spre cumparare o superba vila situata in aproprierea Ploiestiului ( aprox.10 km ),aflata intr-o zona foarte linistita, cu acces facil catre DN.1.

 

Vila se compune din parter + etaj fiind compartimentata astfel :

 

parter : living generos, dormitor,bucatarie,baie, debara, ,terasa acoperita ( cu acces in curtea din spate) si anexa transformata in bucatarie de vara.

 

Etajul este este alcatuit din trei dormitoare ( toate decomandate), baie si o teresa spatioasa,care poate fi transformata intr-o camere de recreere.

 

Casa este amplasata ideal, oferind un spatiu verde impresionant atat in fata casei cat si in spate,dubla deschidere avand un avantaj clar al accesului.Deschiderea la cele doua strazi este de 14 ml.

 

Zona este foarte linistita, cu vecin de calitate,in zona preominand vilele recent construite.

 

Accesul catre oras se face fie prin DN 1 ,fie prin DN 72 .

 

In proximitate exista mai multe locuri de interes,cea mai noua locatie finnd un centru spa de lux.

 

Va asteptam la vizionare.

 
Locatie pe harta
Informatii de Contact
0721 195 827 ; 0723.658.618
roandycompany@yahoo.com
 
Nume/Prenume(Societate):
     
Adresa:
     
E-mail:
     
Telefon:
     
Telefon mobil :
     
Mesaj:
     
 
 
Roandy imobiliare - Agentie imobiliara Ploiesti
roandy.ro ® All Rights Reserved